在太原市迎澤區南十方街一處僅20.27畝的狹小地塊上,山西省中醫院國家中醫疫病防治基地和國家中醫藥傳承創新中心兩大項目穩步推進。該項目由山西建投建筑設計研究院負責設計,總建筑面積約6.6萬平方米,包含中醫疫病防治基地、國家中醫藥傳承創新中心、液氧站及污水處理站等設計工作。該項目是省級重點工程,對于落實山西省中醫藥強省戰略,提升中醫疫病防治能力,推動中醫藥傳承創新發展,助力打造中醫藥強省,具有極其關鍵的支撐與引領作用。
狹地筑基 垂直智轉破困局

項目總平面圖
面對狹小地塊需同時容納300張床位的疫病防治基地和高標準科研中心的挑戰,設計團隊創新采用雙高層并置的垂直布局:將疫病防治基地主樓落位北側,傳承創新中心主樓緊鄰其南,最大限度向高空拓展空間,高效集約利用有限土地資源。這一布局形態,不僅解決了基本功能容納問題,更為后續疫病基地的核心功能創新——高效“平疫轉換”奠定了基礎。

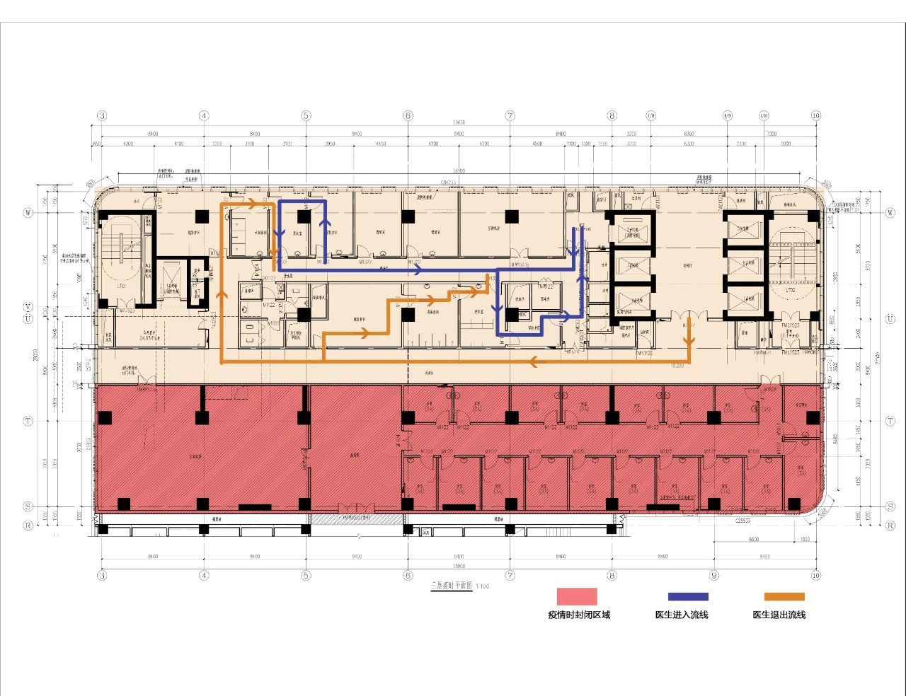
三層疫時流線分析圖

標準層疫時流線分析圖
在局促狹窄的空間內,傳統的平面轉換模式效率低下、成本高昂。于是,團隊首創性地提出并實踐了“垂直集中轉換”策略,實現了空間與效率的雙贏。該策略的核心在于縱向集成轉換功能:在疫病基地三層設置集中衛生通過區,作為醫護人員進出污染病房層的唯一固定節點,取代了傳統各層分散設置的冗余模式,顯著節省了寶貴的平面空間。醫護人員經此區完成防護穿戴后,通過專用密閉電梯垂直直達目標病房層;診療結束后,經由特定路線(使用病患電梯)返回該區脫卸防護。這種垂直專用流線設計,不僅嚴格保證了清潔區、半污染區、污染區的人員物理分離,還節省了改造功能的面積,確保日常醫療功能的高效運行。
此外,病房層采用“平時即備戰”的設計理念,在建造階段即通過可拆卸輕質隔墻系統和預埋標準化機電接口為疫情發生時能夠快速轉換做好準備,并運用BIM技術進行全流程模擬優化。當需要切換至傳染病收治模式時,僅需封堵關鍵門洞、連通陽臺形成獨立患者(污染區)通道,同時利用現有內部走道劃分醫護(半污染區)區域,即可在48小時內安全、高效地完成從日常診療到傳染病收治的靜默轉換,極大提升了應急響應能力。
精研功能 傳承創新融一體
設計團隊秉持“傳承為根、創新為翼,空間賦能中醫藥發展”的核心理念,通過科學的功能布局實現傳統中醫藥智慧與現代科研需求的深度融合。

項目效果圖
團隊以構建支撐中醫藥傳承創新的完整科研體系為目標,對各樓層功能進行了系統規劃:地上一層設置生物樣本庫,通過標準化存儲空間設計為各類研究樣本提供安全穩定的存儲環境,奠定研究基礎。二層整合圖書館與古籍研究室,采用通透明亮的閱覽空間與恒溫恒濕的古籍保存區相結合的設計,既滿足現代文獻查閱需求,又能妥善保護珍貴中醫藥古籍。三層打造名老中醫傳承平臺,通過診室與學術交流區相鄰的布局,營造“言傳身教、經驗共享”的學術氛圍,促進臨床經驗的高效傳承。四至六層規劃為通用研究室,采用靈活可變的空間劃分,滿足不同基礎研究的多樣化需求。七至十二層則集中布置專業實驗室,根據研究領域特性進行精準規劃:中藥化學實驗室配備高效液相色譜儀等設備開展新藥活性成分研究;藥理實驗室通過標準化動物模型和體外細胞培養研究藥效機制;臨床藥理實驗室聚焦個體化給藥方案優化;制劑成型實驗室依據制粒、干燥設備操作流程設計動線。
這種“分層聚焦、專業適配”的空間設計,使每個研究領域都能在專屬環境中高效運轉,最終構建起“傳承有載體、創新有平臺”的完整中醫藥研究體系,全面賦能中醫藥事業的傳承與發展。
匠心塑形 古今融匯賦新意

穿孔鋁板裝飾紋樣效果圖
在建筑風貌塑造上,設計團隊始終遵循“榫卯智構、墨韻芯生”的設計理念,在傳承總院中式傳統元素的基礎上進行現代化創新。設計團隊從傳統窗欞中提取關鍵圖樣,運用參數化設計技術將其轉化為穿孔鋁板裝飾紋樣,動態調整鏤空面積與分布,使文化符號與建筑功能性進風口自然融合。建筑立面突破傳統方正格局,采用流暢弧線造型,在自然光線作用下形成動態光影效果,既呈現傳統水墨的意境美,又彰顯現代建筑的創新性。這一設計既傳承了天人合一的傳統建筑哲學,又通過新材料新技術實現了傳統美學的現代表達,為建筑賦予了獨特的文化標識。傳統元素與現代技術的和諧共生,展現了中醫藥文化的創新發展之路。
目前,項目已進入樁基工程施工階段,設計團隊將始終堅守專業初心,持續為項目提供精細化、全周期的設計服務支持,確保工程品質與設計理念精準落地。